U gebruikt een verouderde internetbrowser.
We raden u aan om de meest recente internetbrowser te installeren voor de beste weergave van deze website.
Een internetbrowser die up to date is, staat ook garant voor veilig surfen.

Tenth
Herent 128, 3910 Pelt
verkocht

Omschrijving

LAATSTE APPARTEMENT TE KOOP!

In het centrum van Tenth/Herent komen 17 prachtige BEN (energieneutraal) nieuwbouwappartementen te koop. Aankopen aan 6 % BTW voor rechthebbenden is mogelijk!

Er is nog één appartement met 2 slaapkamers gelegen op de tweede verdieping beschikbaar.
Het appartement is voorzien van een aangenaam terras, alsook van een eigen autostaanplaats en kelderberging.

Deze nieuwbouwappartementen van Tenth te Pelt worden op een duurzame en kwaliteitsvolle manier afgewerkt. Materiaalkeuze van keuken, badkamer, vloeren en deuren kunnen nog volledig vrij gekozen worden naar eigen wens, binnen het voorziene budget uiteraard. Snelle beslissers kunnen ook de indeling van het appartement nog meebepalen.
Ieder appartement heeft ook een private autostaanplaats en een berging. Voor uw comfort is er ook een lift aanwezig.

16 van de 17 appartementen zijn reeds verkocht!

Voor meer info of vragen, bel 011 64 55 00 of mail naar info@vastgoedfransen.be.

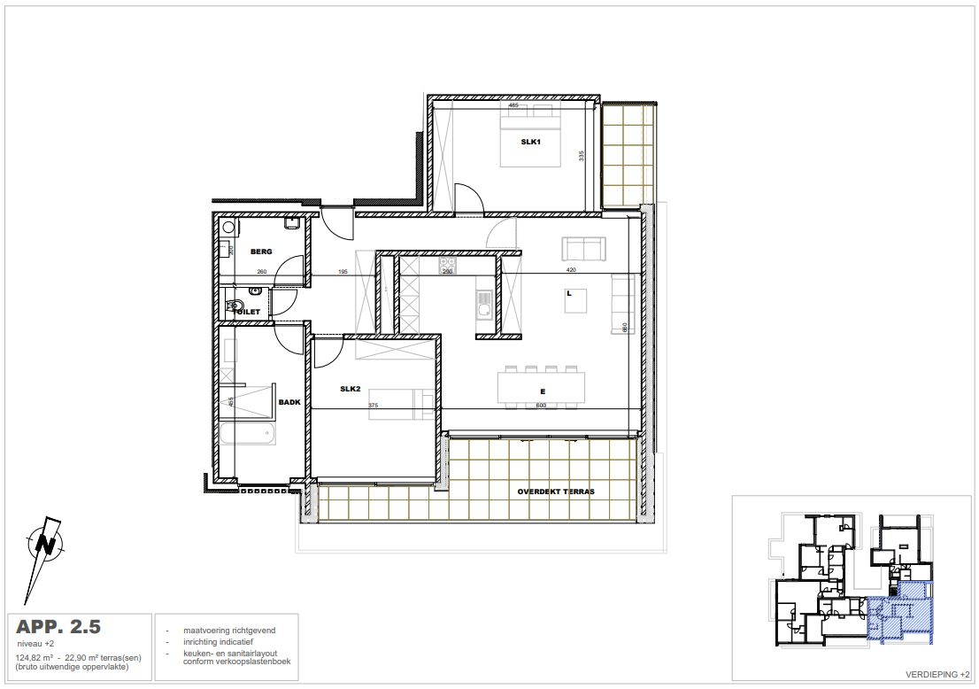
Appartement 2.5 - Blok B tweede verdiep:
Oppervlakte: 124,82 m²
Terras 1: 22,90 m²
Prijs ex. kosten: € 271.030,93


Referentie Type Opp. Slpk. Prijs  
0.1 Appartement 98 m² 2 Verkocht Verkocht
0.5 Appartement 134 m² 2 Verkocht Verkocht
0.6 Appartement 130 m² 2 Verkocht Verkocht
1.5 Appartement 117 m² 2 Verkocht Verkocht
1.6 Appartement 131 m² 3 Verkocht Verkocht
2.1 Appartement 99 m² 2 Verkocht Verkocht
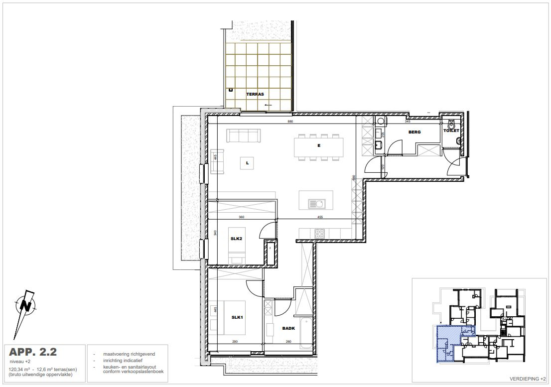
2.2 Appartement 120 m² 2 Verkocht Verkocht
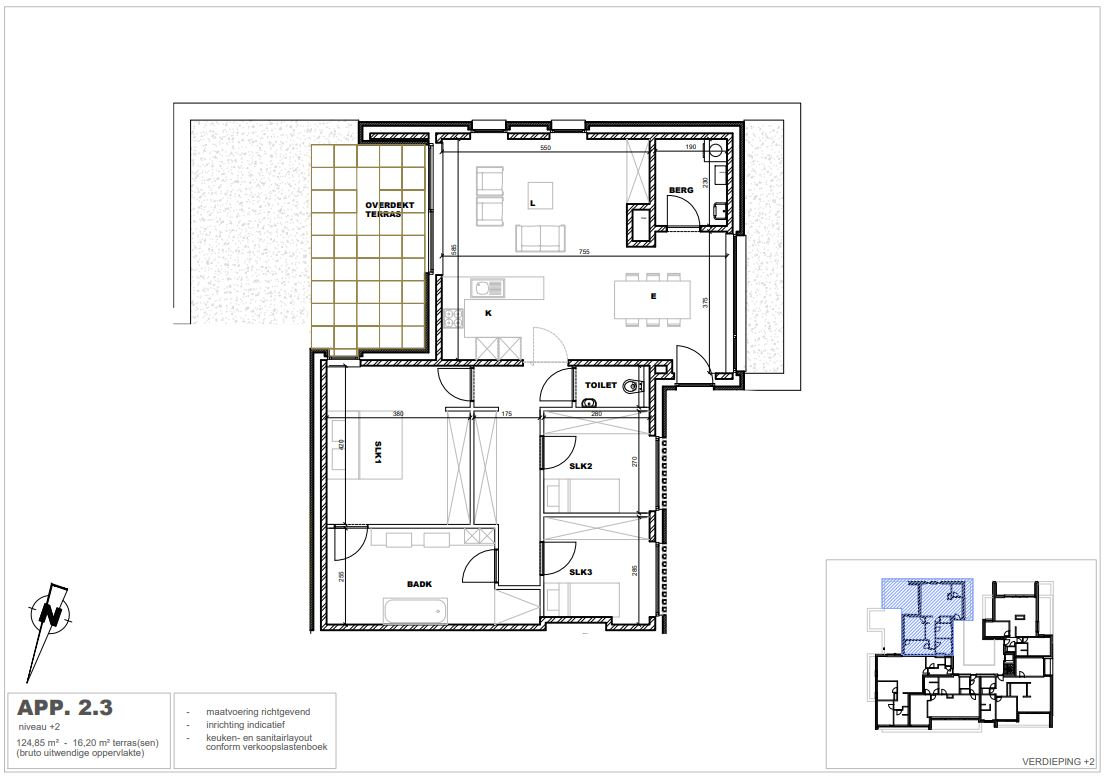
2.3 Appartement 124 m² 3 Verkocht Verkocht
2.5 Appartement 124 m² 2 Verkocht Verkocht

Ligging

Downloads

Neem vrijblijvend contact op

Wenst u meer informatie of het pand te bezoeken? Contacteer ons vrijblijvend voor meer informatie.
Gelieve voor de huurpanden eerst de inlichtingenfiche ingevuld te bezorgen. U vindt deze op de pagina van het pand.
Wanneer wij uw aanvraag hebben ontvangen zullen wij verder contact met u opnemen. 


U moet akkoord gaan met het privacybeleid van deze website
* Verplicht in te vullen
Niet gevonden wat u zocht? Schrijf u dan vrijblijvend in op onze nieuwsbrief en blijf op de hoogte van ons recentste aanbod.
Schrijf u in
Terug naar boven
Sluit menu Vastgoed Fransen BV