U gebruikt een verouderde internetbrowser.
We raden u aan om de meest recente internetbrowser te installeren voor de beste weergave van deze website.
Een internetbrowser die up to date is, staat ook garant voor veilig surfen.

Helaas, dit pand is verkocht

3910 Pelt

Omschrijving

Nieuwbouwwoning in het hartje van SHL in Pelt te koop!

Deze halfopen woning wordt casco aangeboden. De woning zal hierdoor wind- en waterdicht zijn, ramen en deuren zijn in PVC en hebben een zwarte kleur. De perceeloppervlakte van de woning is 5a39ca.

Eenmaal we deze woning binnenkomen, hebben we een ruime hal met toilet, toegang tot de leefruimte en tot het verdiep. De leefruimte is opengetrokken, waardoor zithoek, eetkamer en keuken zich in een mooie open ruimte bevinden. Verder is er ook achter een inkomhal en een ruime bergplaats voorzien gelijkvloers. Het leuke is dat je vanuit de leefruimte direct aansluiting hebt met het terras en de tuin.

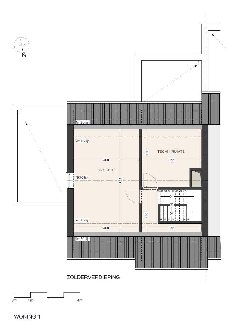
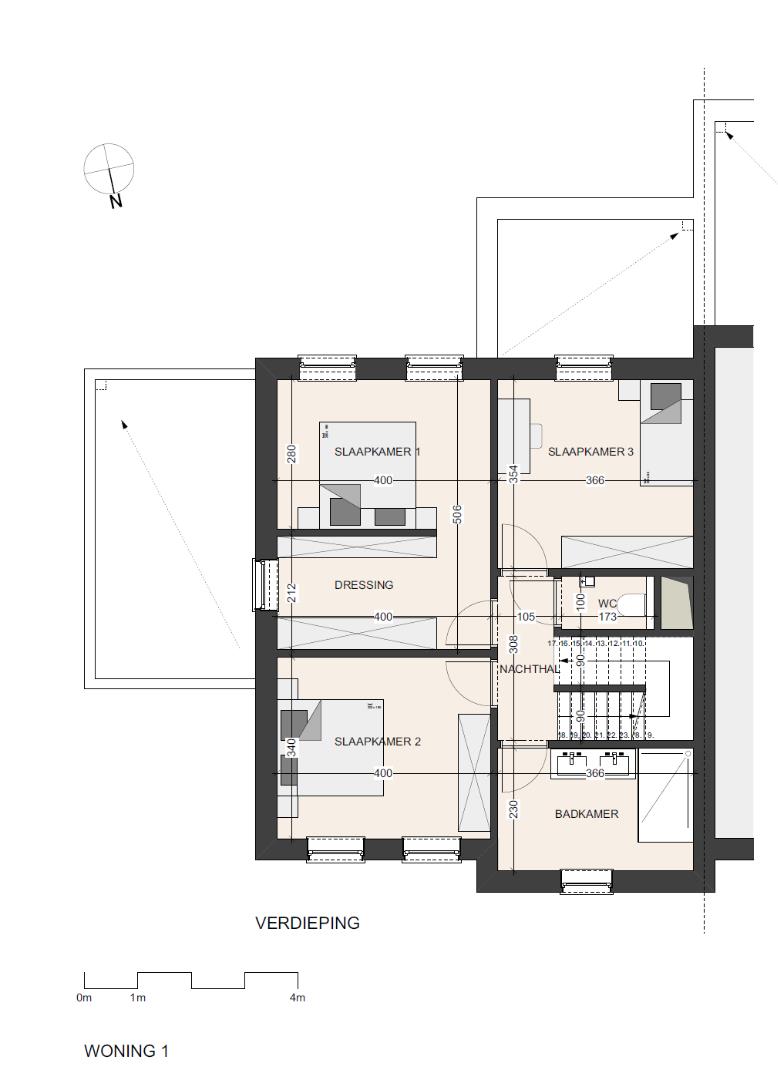
Eenmaal op verdiep, zijn er drie ruime slaapkamers, waarbij één slaapkamer voorzien is met een eigen dressingruimte. Daarnaast is er ook een apart toilet en een ruime badkamer op verdiep. Vervolgens is er een vaste trap naar de zolder waar nog een grote ruimte van +/- 30m² te benutten is en ook een aparte technische ruimte is voorzien.

De oprit zal voorzien worden van steenpuin en er is een vergunning om een carport te plaatsen tegen de woning.

Indeling prijs:
Grondaandeel: € 100.000
Registratierecht op grond (12%): € 12.000
Constructie: € 165.000
BTW op constructie (6% mits voldoen aan voorwaarden): € 9.900
BTW op constructie (21% mits niet voldoen aan voorwaarden): € 34.650

Totaal 6% BTW: € 286.900 inclusief kosten
Totaal 21% BTW: € 311.650 inclusief kosten

Voor meer informatie, bel 011 64 55 00 of mail naar info@vastgoedfransen.be.


Niet gevonden wat u zocht? Schrijf u dan vrijblijvend in op onze nieuwsbrief en blijf op de hoogte van ons recentste aanbod.
Schrijf u in
Terug naar boven
Sluit menu Vastgoed Fransen BV