U gebruikt een verouderde internetbrowser.
We raden u aan om de meest recente internetbrowser te installeren voor de beste weergave van deze website.
Een internetbrowser die up to date is, staat ook garant voor veilig surfen.

Helaas, dit pand is verkocht

3910 Pelt

Omschrijving

In het centrum van Tenth/Herent komen prachtige nieuwbouwappartementen te koop. Aankopen aan 6 % BTW voor rechthebbenden is mogelijk!

Deze nieuwbouwappartementen van Tenth te Pelt worden op een duurzame en kwaliteitsvolle manier afgewerkt. Materiaalkeuze van keuken, badkamer, vloeren en deuren kunnen nog volledig vrij gekozen worden naar eigen wens, binnen het voorziene budget uiteraard. Snelle beslissers kunnen ook de indeling van het appartement nog meebepalen.
Dit appartement gelegen op tweede verdiep heeft ook een private autostaanplaats en een berging. Voor uw comfort is er ook een lift aanwezig.

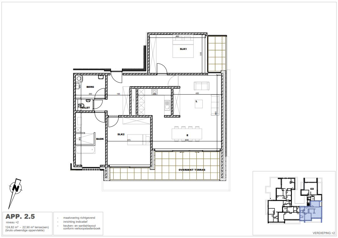
Appartement 2.5 - Blok B tweede verdiep:
Aantal slaapkamers: 2
Oppervlakte: 124,82 m²
Terras: 22,90 m²
Prijs ex. kosten: € 271.030,93

Voor meer info of vragen, bel 011 64 55 00 of mail naar info@vastgoedfransen.be.


Niet gevonden wat u zocht? Schrijf u dan vrijblijvend in op onze nieuwsbrief en blijf op de hoogte van ons recentste aanbod.
Schrijf u in
Terug naar boven
Sluit menu Vastgoed Fransen BV