U gebruikt een verouderde internetbrowser.
We raden u aan om de meest recente internetbrowser te installeren voor de beste weergave van deze website.
Een internetbrowser die up to date is, staat ook garant voor veilig surfen.

Helaas, dit pand is verkocht

3900 Pelt

Omschrijving

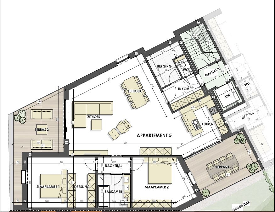
Prachtig nieuwbouw appartement in residentie "De Koel"

Residentie " De Koel " is een modern en energiezuinig bouwproject gelegen langs de Leopoldlaan te midden van het nieuwe shoppingscentrum wat binnen afzienbare tijd waarschijnlijk het nieuwe centrum wordt van Pelt.

Het appartement heeft een bewoonbare oppervlakte van 140 m² en is voorzien van 2 terrassen.
Ondergronds horen er 2 staanplaatsen bij het appartement en een berging.
Via 1 van de 2 terrassen heeft u zicht op de binnentuin dewelke zuidelijk georienteerd is.

Het appartement is uitgerust met een waterbestuurde warmtepomp, waardoor u niet alleen kan opwarmen via de vloerverwarming maar ook passief kan koelen.

Voor meer info contacteer ons op 011 64 55 00


Niet gevonden wat u zocht? Schrijf u dan vrijblijvend in op onze nieuwsbrief en blijf op de hoogte van ons recentste aanbod.
Schrijf u in
Terug naar boven
Sluit menu Vastgoed Fransen BV