U gebruikt een verouderde internetbrowser.
We raden u aan om de meest recente internetbrowser te installeren voor de beste weergave van deze website.
Een internetbrowser die up to date is, staat ook garant voor veilig surfen.

Helaas, dit pand is verhuurd

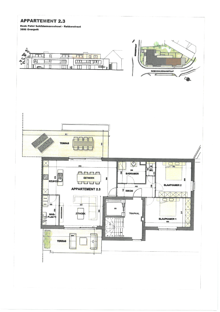
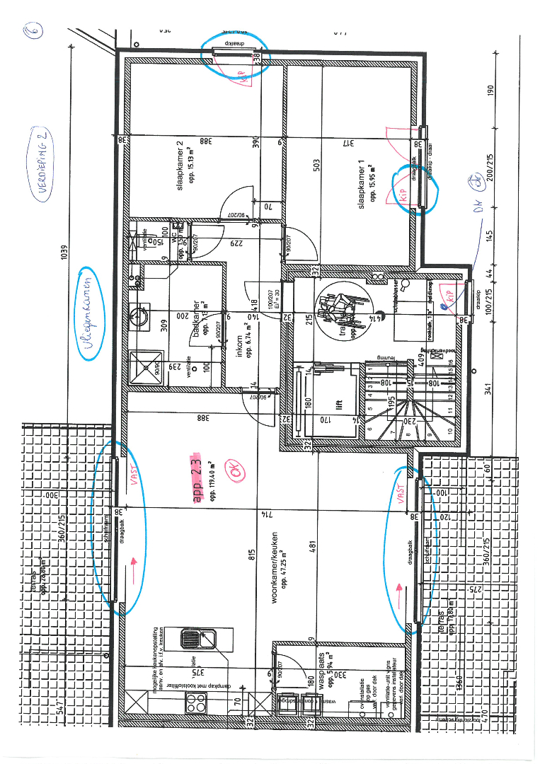
3900 Pelt

Omschrijving

IN OPTIE! Energie-zuinig luxe penthouse (120 m2 bewoonbaar + 50 m2 terras) te Lindel centrum kortbij scholen, winkels, horeca, ... E-peil 30. Apart verdiep met enig gebruik lift. Vloerverwarming. Overal vliegenramen. Volledig geverfd. Het appartement bestaat uit een inkomhal,ruime woonkamer met keukenhoek (hyper-geïnstalleerd), wasplaats/berging, badkamer (ruime inloopdouche), 2 ruime slaapkamers, toilet apart. Zonnepanelen. Groot terras aan beide kanten van het appartement. Autostaanplaats + berging in de kelder. Kortom een prachtig appartement centraal in het centrum waar je een uitgestrekt zicht hebt vanuit alle kamers. Gemeenschappelijke kosten 60 euro per maand. Voor meer info contacteer ons op 011/645500 of info@vastgoedfransen.be.


Niet gevonden wat u zocht? Schrijf u dan vrijblijvend in op onze nieuwsbrief en blijf op de hoogte van ons recentste aanbod.
Schrijf u in
Terug naar boven
Sluit menu Vastgoed Fransen BV